Low Cost 1000 Square Feet Home Design - Stylish design and have all the modern amenities.

Low Cost 1000 Square Feet Home Design - Stylish design and have all the modern amenities.. Low country homes are adapted to the climate and weather conditions of this gorgeous region. 1000 square feet 3 bedroom simple style single floor low cost house and plan. Design provided by absolute solution from trivandrum, kerala. Posted by kerala home design at 1:42 pm. House in west bengal, india will be at a lower side such as rs 12 00 per sq.

We have noticed the huge requirement of low budget small home designs among our readers and we decided to publish more than 15 home designs which come below 1000 square feet and the construction cost between 4 lakhs to 15 lakhs remarks : 1000 sq ft house plans. While many factors contribute to a home's cost to build, a tiny house plan under 1000 sq ft will almost always cost less to build and maintain than a typical home. Low country homes are adapted to the climate and weather conditions of this gorgeous region. See the ekomodel home page for details.

Hind 9988 Model House Plan Modern House Plans 1000 Sq Ft House
Hind 9988 Model House Plan Modern House Plans 1000 Sq Ft House from i.pinimg.com
Designed by sameer visuals, tamilnadu, india. The average cost to build a house is $248,000, or between $100 to $155 per square foot depending on your location, size of the home, and if modern or custom designs are used. Dream 1000 sq ft house & floor plans. Which plan do you want to build? Under plan we have included all inclusive like no other more choices then even before. This means tiny home owners get to do things with their income/savings other than pay their mortgage. Indian house plans for 1000 sq ft | best small low budget home design | latest modern collections of indian house plans for 1000 sq ft | duplex veedu below 1000 sq ft & 3d elevation ideas online | kerala style architectural plan. Material required for 1000 sqft house construction.

Home build) cost to hire an architect varies greatly by region (and even by zip code).

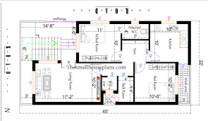
Design provided by absolute solution from trivandrum, kerala. Choose your favorite 1,000 square foot plan from our vast collection. Get free estimates from architects in your city. Kerala homes 2 bedroom, below 1000 sq ft, budget, budget house plan in kerala, common bathroom, single storied, slider this is going to be a lovable design for budget home lovers. घर बनाने में कितना खर्चा आता. The width of the construction is 16 feet and length is 30 feet. The exterior walls are 8 feet tall with cathedral ceilings, peaking at 11 feet. Designed by sameer visuals, tamilnadu, india. We have noticed the huge requirement of low budget small home designs among our readers and we decided to publish more than 15 home designs which come below 1000 square feet and the construction cost between 4 lakhs to 15 lakhs remarks : We proud to present thousands of house plans that help people in making their dream house and these plans are published on our website time to time. 2 house specification ground floor If you are looking for some amazing home plans but your budget is low then just come ahead and take our low cost budget home design below 7 lakh (approximate cost). The pine valley is not yet in our pricing sheet.

America's best house plans has a large collection of small house plans with fewer than 1,000 square feet. Also see the best small house plans. Special notes on the pine valley. 2 house specification ground floor Building a custom designed dream home will usually end up costing more than if you.

1000 Square Feet Cottage Plans Download 1800 Sq Ft 1000 Square Foot House Plans Cottage Ho House Plan With Loft 1000 Square Foot House Plans Cottage Plan
1000 Square Feet Cottage Plans Download 1800 Sq Ft 1000 Square Foot House Plans Cottage Ho House Plan With Loft 1000 Square Foot House Plans Cottage Plan from i.pinimg.com
We proud to present thousands of house plans that help people in making their dream house and these plans are published on our website time to time. Indian house plans for 1000 sq ft | best small low budget home design | latest modern collections of indian house plans for 1000 sq ft | duplex veedu below 1000 sq ft & 3d elevation ideas online | kerala style architectural plan. The pine valley is not yet in our pricing sheet. 1000 square feet house design | 1000 sqft floor plan | under 1000 sqft house map. Building a custom designed dream home will usually end up costing more than if you. Posted by kerala home design at 1:42 pm. Designed by sameer visuals, tamilnadu, india. Kerala style house plans, low cost house plans kerala style, small house plans in kerala with photos, 1000 sq ft house plans with front elevation, 2 bedroom house plan indian style, small 2 bedroom house plans and designs, 1200 sq ft house plans 2 bedroom indian style, 2 bedroom house plans indian style 1200 sq feet, house plans in kerala with 3 bedrooms, 3 bedroom house plans kerala model.

Stylish design and have all the modern amenities.

That's where these plans with 1,000 square feet come in! Home build) cost to hire an architect varies greatly by region (and even by zip code). 1 bedroom 900 sf apartment over 2 car garage. We have noticed the huge requirement of low budget small home designs among our readers and we decided to publish more than 15 home designs which come below 1000 square feet and the construction cost between 4 lakhs to 15 lakhs remarks : Sometimes all you need is a simple place to unwind, and these charming cottages and cabins show you how to have everything you need in a small space. Material required for 1000 sqft house construction. Two bedroom low cost tamilnadu style house in 1000 square feet (93 square meter) (111 square yards). Which plan do you want to build? Let us design your custom home! Free download 25×30 small house plan. (full design and overseeing of a custom 6,000 sq.ft. (initial meeting and custom design plans only with no continuing oversight of the work) high: Let us have a look on the same

Choose your favorite 1,000 square foot plan from our vast collection. There will be never be a better time or service provider to own your dream home and. Square feet details total area : Posted by kerala home design at 1:42 pm. Being an expert builder we understand that choosing a house plan design is a great step in building your new house.

1000 Sq Ft House Plans 2 Bedroom Indian Style Best Of Nadumuttam And Poomukham Kuthiramalika Style Small Modern House Plans Simple House Plans 2bhk House Plan
1000 Sq Ft House Plans 2 Bedroom Indian Style Best Of Nadumuttam And Poomukham Kuthiramalika Style Small Modern House Plans Simple House Plans 2bhk House Plan from i.pinimg.com
New home construction for a 2,000 square foot home runs $201,000 to $310,000 on average. A house that is 1,500 square feet or less is the least expensive to build. You have to construct home according to the structure of the land which is different in one another. (initial meeting and custom design plans only with no continuing oversight of the work) high: America's best house plans has a large collection of small house plans with fewer than 1,000 square feet. House in west bengal, india will be at a lower side such as rs 12 00 per sq. While many factors contribute to a home's cost to build, a tiny house plan under 1000 sq ft will almost always cost less to build and maintain than a typical home. Sometimes all you need is a simple place to unwind, and these charming cottages and cabins show you how to have everything you need in a small space.

Dream 1000 sq ft house & floor plans.

Calculate your house construction cost in an el sheet in hindi 2021. 2 house specification ground floor Being an expert builder we understand that choosing a house plan design is a great step in building your new house. Designed by sameer visuals, tamilnadu, india. Dream 1000 sq ft house & floor plans. There's flooring, and there's being floored. The average cost to build a house is $248,000, or between $100 to $155 per square foot depending on your location, size of the home, and if modern or custom designs are used. Let us design your custom home! घर बनाने में कितना खर्चा आता. Get free estimates from architects in your city. Our small cabin plans are all for homes under 1000 square feet, but they don't give an inch on being stylish. You have to construct home according to the structure of the land which is different in one another. Under plan we have included all inclusive like no other more choices then even before.

घर बनाने में कितना खर्चा आता 1000 square feet home. Which plan do you want to build?

Posting Komentar

Lebih baru Lebih lama